2 WhitfordStony Brook, NY 11790



Mortgage Calculator
Monthly Payment (Est.)
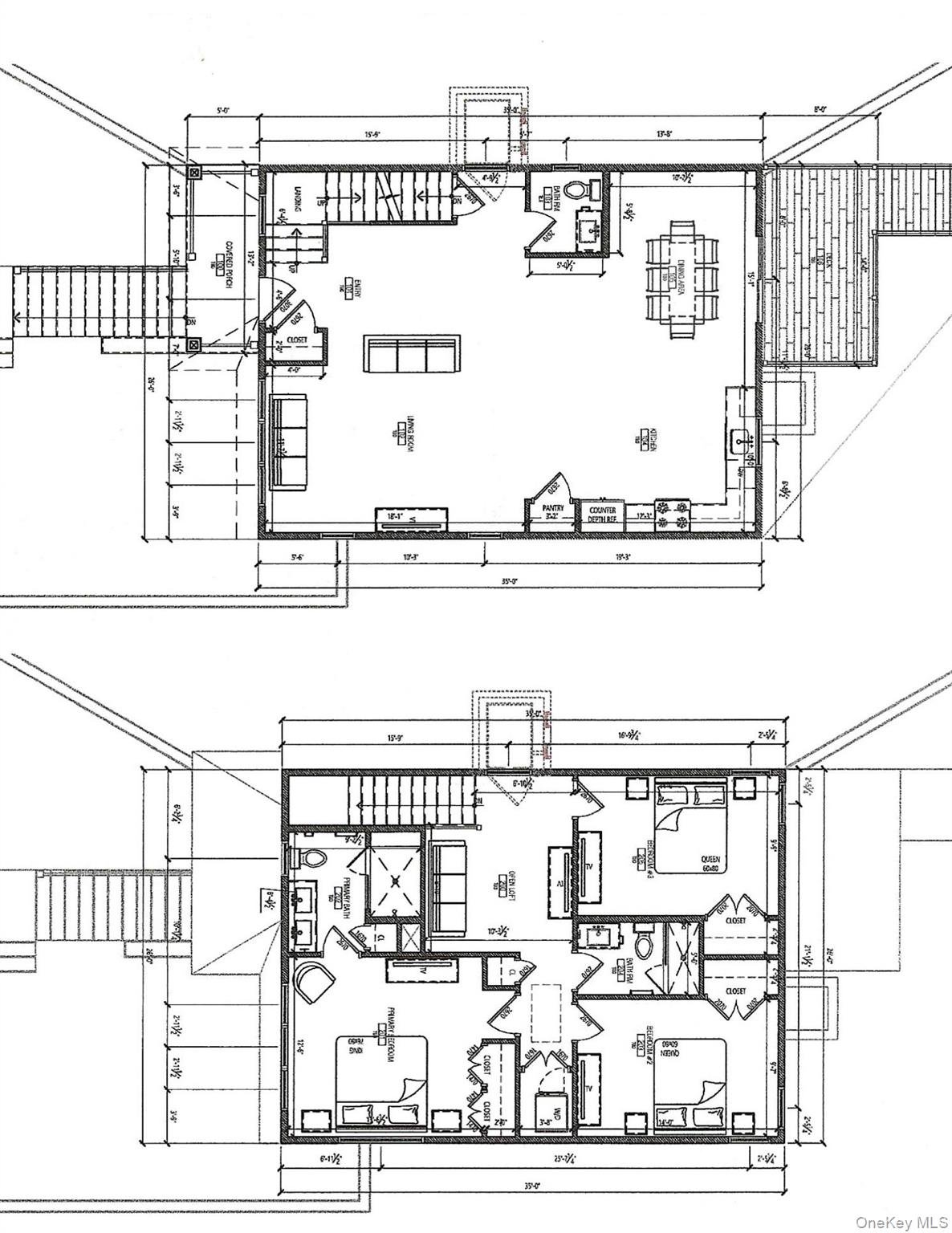
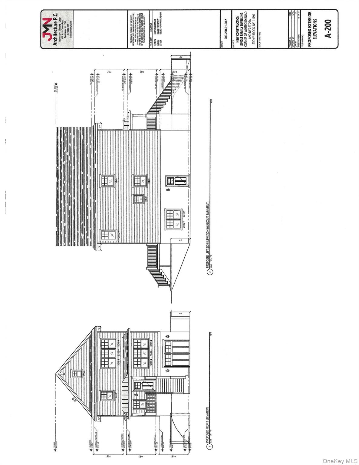
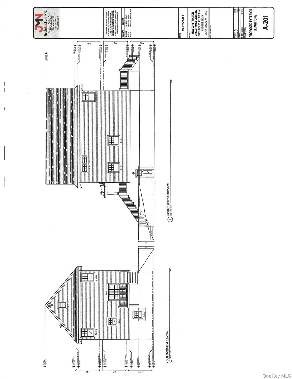
$4,102New Construction! Time to customize your dream home! This beautifully designed home will be completed in March 2027. Featuring a 3 bedroom, 2 1/2 bath Colonial with an open floor plan concept Constructed with black metal roof, covered front porch, basement with outside entrance, 2 zone central air conditioning, and 1 car garage. Close proximity to the Stony Brook village, train, and marina. Located on the northwest corner of Whitford Road and North Country Road in the Three Village School District! Design a custom living space that truly feels like it was built just for you!
| 17 hours ago | Listing first seen on site | |
| 17 hours ago | Listing updated with changes from the MLS® |
Based on information submitted to the MLS GRID as of 2026-04-03 05:13 AM EDT. All data is obtained from various sources and may not have been verified by broker or MLS GRID. Supplied Open House Information is subject to change without notice. All information should be independently reviewed and verified for accuracy. Properties may or may not be listed by the office/agent presenting the information.