Save
Ask
Tour
Hide
$835,000
3 Days On Site
42 Kirkwood RoadPort Washington, NY 11050
For Sale|Land|Active
County:
Nassau
Listing courtesy of Shore Line Realty Group Corp wgeier1@gmail.com


Save
Ask
Tour
Hide
Mortgage Calculator
Monthly Payment (Est.)
$3,810Calculator powered by Showcase IDX, a Constellation1 Company. Copyright ©2026 Information is deemed reliable but not guaranteed.
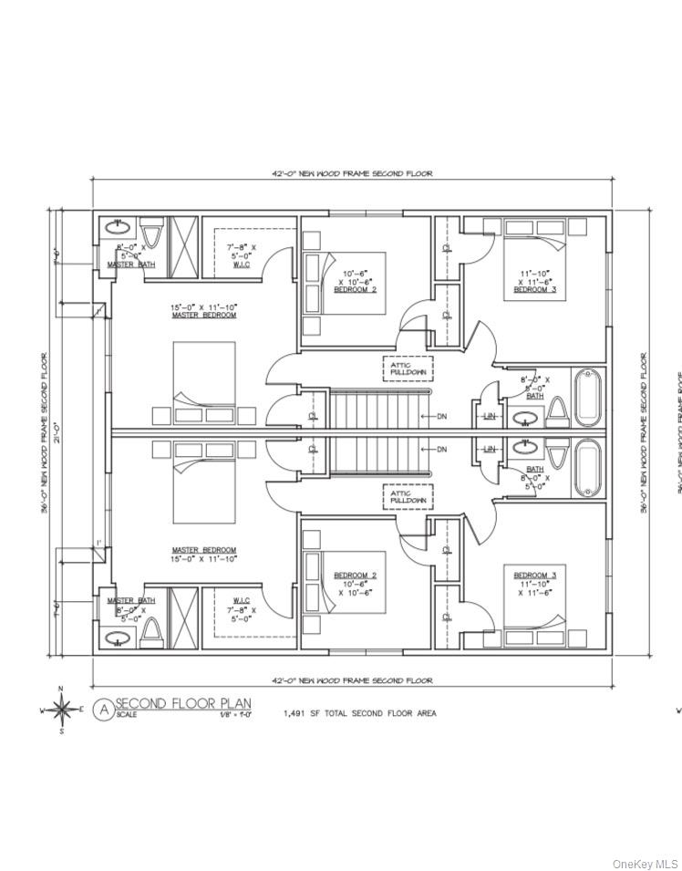
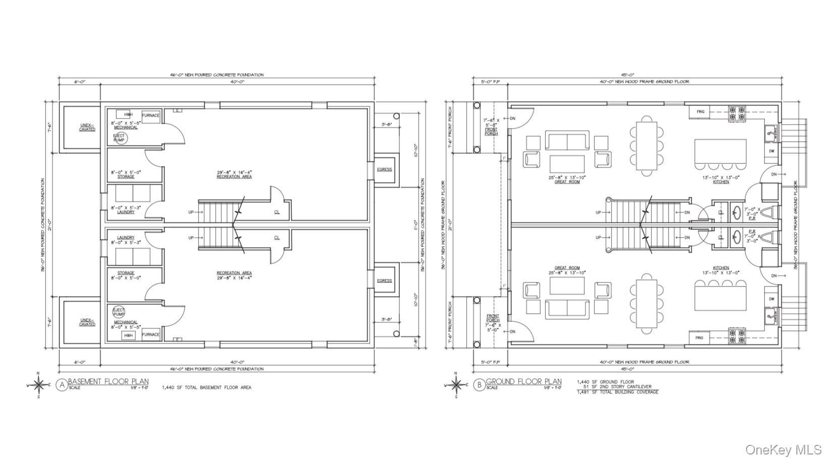
This property has been approved for a new construction 2 family home. It will feature 6 bedrooms 4 full and 2 half baths. This property is being sold as land value with plans approved by the BZA and Planning Board. Purchaser to complete the remaining steps to completion or seller can assist and build home for purchaser.
Save
Ask
Tour
Hide
Listing Snapshot
Price
$835,000
Days On Site
3 Days
Bedrooms
N/A
Inside Area (SqFt)
N/A
Total Baths
N/A
Full Baths
N/A
Partial Baths
N/A
Lot Size
0.1148 Acres
Year Built
N/A
MLS® Number
956664
Status
Active
Property Tax
$8,147.39
HOA/Condo/Coop Fees
N/A
Sq Ft Source
N/A
Friends & Family
Recent Activity
| 3 days ago | Listing first seen on site | |
| 3 days ago | Listing updated with changes from the MLS® |
General Features
Acres
0.1148
Additional Property Use
Multi-Family
Sewer
Public Sewer
Utilities
Natural Gas AvailableElectricity AvailableSewer AvailableWater Available
Water Source
Public
Save
Ask
Tour
Hide
Community Features
MLS Area
Manorhaven
School District
Port Washington
Schools
School District
Port Washington
Elementary School
Manorhaven Elementary School
Middle School
Carrie Palmer Weber Middle School
High School
Paul D Schreiber Senio High School
Listing courtesy of Shore Line Realty Group Corp wgeier1@gmail.com
Based on information submitted to the MLS GRID as of 2026-02-01 07:58 PM EST. All data is obtained from various sources and may not have been verified by broker or MLS GRID. Supplied Open House Information is subject to change without notice. All information should be independently reviewed and verified for accuracy. Properties may or may not be listed by the office/agent presenting the information.
Based on information submitted to the MLS GRID as of 2026-02-01 07:58 PM EST. All data is obtained from various sources and may not have been verified by broker or MLS GRID. Supplied Open House Information is subject to change without notice. All information should be independently reviewed and verified for accuracy. Properties may or may not be listed by the office/agent presenting the information.
Neighborhood & Commute
Source: Walkscore
Disclosure: Community information and market data powered by Constellation Data Labs. Information is deemed reliable but not guaranteed.
Save
Ask
Tour
Hide
Did you know? You can invite friends and family to your search. They can join your search, rate and discuss listings with you.