63 Page AvenueYonkers, NY 10704




Mortgage Calculator
Monthly Payment (Est.)
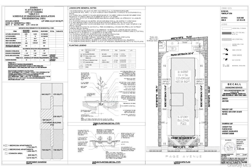
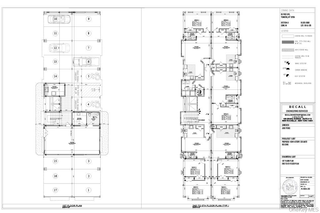
$6,958CALLING ALL INVESTORS Development opportunity in Yonkers. Property is being sold with accepted architectural plans and a complete approved set for proposed redevelopment. Projected rent roll based on approved plans is approximately $739,000 annually (buyer to independently verify all projections). We can provide all documentation that has been provided to us, including architectural materials. Buyer also has the option to be introduced to an experienced architect, contractor, and construction loan officer familiar with the project, if desired. A verified construction cost estimate is also available upon request. Buyer must perform their own due diligence.
| 5 days ago | Listing first seen on site | |
| 5 days ago | Listing updated with changes from the MLS® |
Based on information submitted to the MLS GRID as of 2026-02-01 07:58 PM EST. All data is obtained from various sources and may not have been verified by broker or MLS GRID. Supplied Open House Information is subject to change without notice. All information should be independently reviewed and verified for accuracy. Properties may or may not be listed by the office/agent presenting the information.
Did you know? You can invite friends and family to your search. They can join your search, rate and discuss listings with you.