2945 Tenbroeck AvenueBronx, NY 10469



Mortgage Calculator
Monthly Payment (Est.)
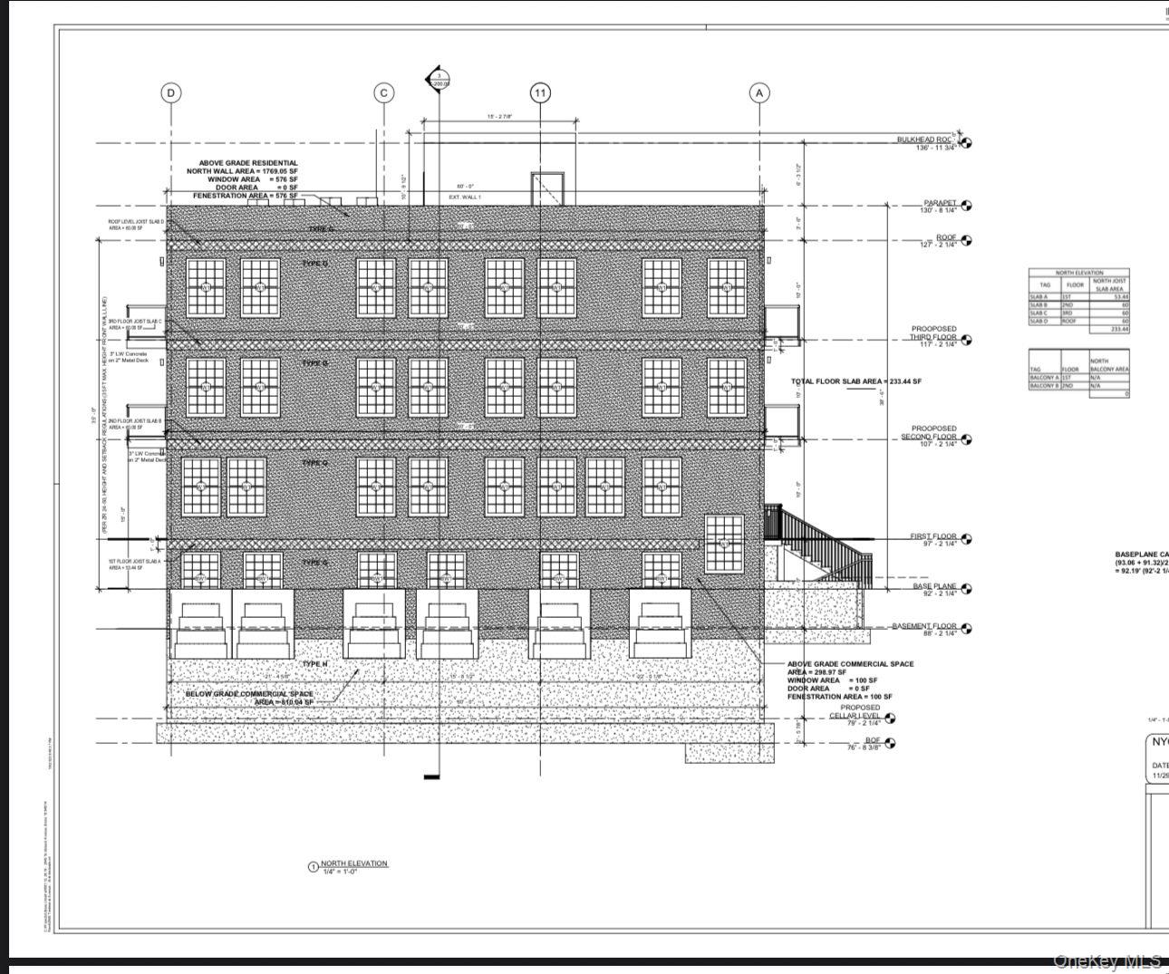
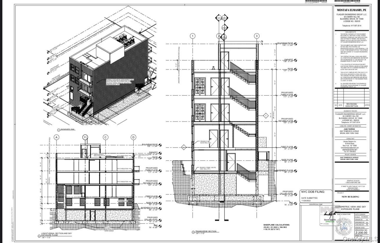
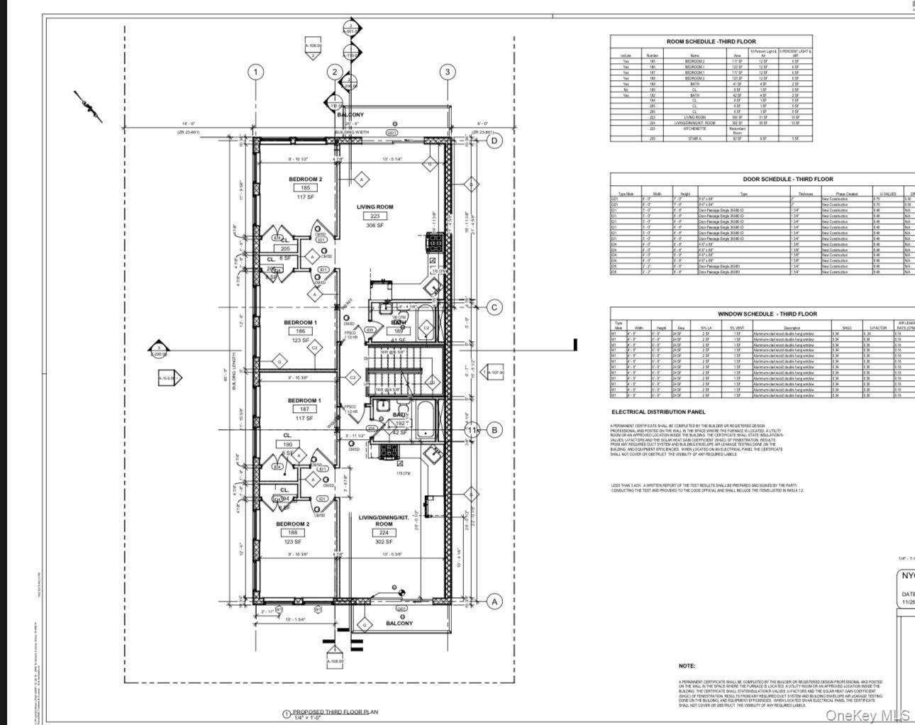
$4,558Development Opportunity in the Bronx – Approved 6-Unit Project Ready to Build! Unbeatable deal in the Locania section of the Bronx! This prime construction site comes with fully approved architectural plans for six residential units — all permits in place and ready for immediate construction. Perfect for developers and investors, this site offers a rare chance to start building right away in one of the Bronx’s most promising and growing neighborhoods. Excellent access to transportation, schools, and shopping, making it a high-demand location for future tenants or buyers. ? Approved 6-unit plans ? All permits ready — no waiting ? Great ROI potential in a fast-developing area Opportunities like this don’t stay on the market for long! ?? Contact us today to schedule a viewing or request full plans and details.
| 23 hours ago | Listing first seen on site | |
| 23 hours ago | Listing updated with changes from the MLS® |
Based on information submitted to the MLS GRID as of 2025-12-16 04:20 PM EST. All data is obtained from various sources and may not have been verified by broker or MLS GRID. Supplied Open House Information is subject to change without notice. All information should be independently reviewed and verified for accuracy. Properties may or may not be listed by the office/agent presenting the information.
Did you know? You can invite friends and family to your search. They can join your search, rate and discuss listings with you.